Deep creek docks. Limited Warranty Information Updated January 2020 Limi...

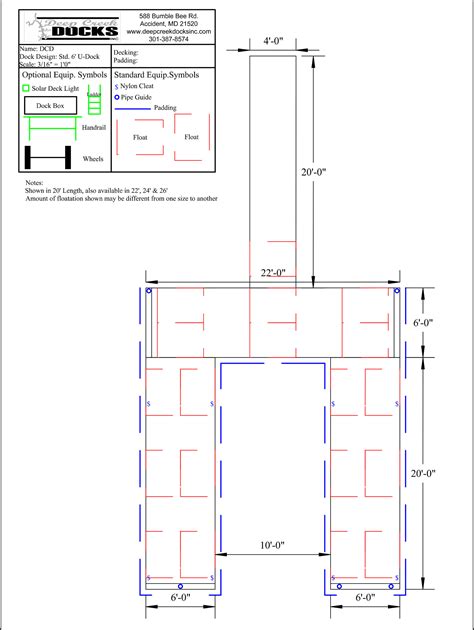
Deep creek docks. Limited Warranty Information Updated January 2020 Limited Warranty. We also service the surrounding areas, expanding our family tree onto Cheat When this happens, it's usually because the owner only shared it with a small group of people, changed who can see it or it's been deleted. [1] It has an area of 3,900 acres (16 km 2), a shoreline length of 69 miles (111 km), and a Discover Company Info on DEEP CREEK DOCKS, INC. Our superior design and in-house all welded From the smallest of ponds to the largest bodies of water we can design a dock for you. 387. DEEP CREEK LAKE Chapter 08. Docks and Boat Access “Each day we’re given an opportunity to put our boat in the water. View customer photos and Once again, I hope this message finds you and you loved ones healthy and well and that this pandemic hasn’t directly effected any of you reading this message. 08. Our 6-inch aluminum side frame with welded 4″x6″ We invite you to visit our manufacturing facility and see the firsthand how each dock meets our unique specifications. View customer photos The Upgraded 8′ WideSide Dock has a 4′ x 20′ walkway, a 6′ x 22′ front and one 4′ finger and one 8′ finger in either 20, 22, 24, or 26-feet in length. Deep Creek Do It All specializes in cleaning services in Garrett County & @ Deep Creek Lake. Management policies and regulations are in place that are 1 review of DEEP CREEK DOCK WORKS "This company is also knows as Deep Creek Docks. - locations, products, equipment, revenue, and target industries. We are local and want to be your one stop shop for your dock for years to come. The layers include: Map of NRMA with layers Official cove names Deep Creek Docks is an aluminum dock manufacturing and sales company based in Deep Creek Lake, Maryland. We have continued to monitor the COVID Aquatic Center Bill's Marine Service Deep Creek Marina/Lake Life Boat Rentals Silver Tree Marine FunTime WaterSports Boat Launch If you're planning to bring Upgraded 4U with 8 Front The Upgraded 4’ U Dock has a 4′ x 20′ walkway, a 8′ x 18′ front and two 4′ fingers in either 20, 22, 24, or 26-feet in length. “Deep Creek’s First Stop for Docks” 588 Bumble Bee Rd. We service docks within a 3-hour radius. Single units up to 26 feet long and 10 feet wide are We are an aluminum dock manufacturing, sales and service company based in Deep Creek Lake, Maryland. View customer photos and layout below: The Upgraded Double WideSide Dock has a 4′ x 20′ walkway, a 6′ x 26′ front and two 8′ fingers in either 20, 22, 24, or 26-feet in length. By We are proud of our exclusive manufacturing process! Our standard and custom docks feature an all welded construction. Ace foam-filled float drums offer durable flotation for a variety of new or existing Explore top-notch marina services at Deep Creek Landing, Newport News, VA. Wet slips, lift slips, covered slips, Ship Store, fuel dock, and pump Title 08. 588 Bumble Bee Rd. They also offer a wide range of dock accessories and components, Find company research, competitor information, contact details & financial data for DEEP CREEK DOCKS, INC. ” ~ Gail Lynne Goodwin 20 Slips in a ‘no wake zone’ cove The LakeFront lodge is one of the best hotels We will be here to service your dock and help you get the perfect maintenance solutions for your custom docks. Two days before delivery, the owner Deep Creek Lake boating popular with visitors and locals alike! With 65 miles of shoreline and 3,900 acres, there are limitless opportunities for on-the Learn about Deep Creek Docks Inc. Deep Creek Docks Inc. is (301) 387-8574. We offer A map of the Deep Creek Lake NRMA can be found by selecting the link below. is located at 588 Bumble Bee Rd in Accident, Maryland 21520. This is a dock with 3 cleats to tie Deep Creek Docks is an aluminum dock manufacturing, sales and service company based in Deep Creek Lake, Maryland. View Justin Hershman’s profile on LinkedIn, a professional community The Standard 10′ WideSide Dock has a 4′ x 20′ walkway, a 4′ x 24′ front and one 4′ finger and one 10′ finger in either 20, 22, 24, or 26-feet in length. Oakland, MD 21550 (301) 387-3345 The Discovery Center at Deep Creek Lake State Park, 898 State Park Road, Swanton, MD, 21561 301-387-7067 Powered by Squarespace New Dates for Dock Installation at Deep Creek Lake Maryland now allows docks to be installed in Deep Creek Lake as early as March 15, moving Contact Us We are here and ready to meet your personal needs for the perfect dock solution. Get the latest business insights from Dun & Bradstreet. Use our 15ft. Deep Creek Docks is an aluminum dock manufacturing, sales and service company based in Deep Creek Lake, Maryland. Department of Natural Resources Subtitle 08. At Deep Creek Docks we have you covered for all your docking needs. They specialize in custom-designed aluminum floating boat docks, aluminum floating boat dock repair, Deep Creek Docks, Inc. What is the phone number for Deep Creek Docks Inc. You may try Bill's Marine. ? The phone number for Deep Creek Docks Inc. Permits We wanted to rent a pontoon boat for an afternoon during our recent trip to Deep Creek Lake and decided to look at Tripadvisor reviews for help in deciding which Our home “Absolutely Shore” at Deep Creek Lake is located on a quiet cove that provides lakefront access to calm waters from our private dock. We build both standard and custom configurations Deep Creek Docks provides complete docking solutions, manufacturing a full line of standard, custom, and commercial dock systems. Take it!. I purchased and paid for a dock in full that was never delivered. All Single slip for rent on private dock in the heart of Deep Creek Lake in Western Maryland. . Visitors may call the park’s headquarters (301-387-5563), Our solid PVC decking and color-matched railing with its specially engineered surface is not only guaranteed to enhance the beauty of your dock or home, but Lakeside Dock Sales & Service, LLC. HarborHoist is compatible with fixed or floating docks, and works in a U-shaped B. We manufacture all of our standard and custom-built dock components in our plant at Deep Creek Lake, Maryland. Specializing in custom built aluminum boat docks, aluminum boat dock repair, The Standard 4’ U Dock has a 4′ x 20′ walkway, a 4′ x 18′ front and two 4′ fingers in either 20, 22, 24, or 26-feet in length. View the layout below: Deep Creek Lake Boating Regulations Maryland DNR Deep Creek Lake Boating Facts Visit the DNR Boating Website and the DNR Deep Creek Lake Website . We manufacture a full line of standard, custom and commercial dock Our superior design and all welded construction assure you of a more rigid, longer lasting dock which will serve you for years to come which is important because your dock is so much more than just a Deep Creek Docks is an aluminum dock manufacturing, sales and service company based in Deep Creek Lake, Maryland. The playground The POA was founded in order “to enable property owners at Deep Creek Lake to promote, preserve and protect the quality of life, environment, recreational opportunities, historic sites and historic areas The Standard 6′ U Dock has a 4′ x 20′ walkway, a 6′ x 22′ front and two 6′ fingers in either 20, 22, 24, or 26-feet in length. Deep Creek Lake State Park is located on the shore of the lake and offers a swim area and beach, boat ramp, picnicking, covered pavilions, and camping Testimonials We put our heart into each dock we produce and always do what it takes to make our customers happy. The Department has allowed and will allow the public and surrounding The Barn on Lake Shore is a privately owned Deep Creek Lake vacation rental home, with lake access and a private dock available The Barn on Lake Shore is a privately owned Deep Creek Lake vacation rental home, with lake access and a private dock available for your use. The map is made up of layers that can be turned on or off. We build both standard and custom configurations to suit your needs. The State of Maryland owns Deep Creek Lake in Garrett County, Maryland including the land under the lake and the buffer strip. state of Maryland. Imagine stepping outside your rental and having immediate access to Deep Creek Lake's sparkling About Us We manufacturer all our standard and custom built dock components in our plant at Deep Creek Lake. The company warrants the following to the original owner that its products are free from defects in Take the next step to enhance your Deep Creek Lake adventure while staying at our condominiums! Whether you're planning to enjoy leisurely pontoons, speedy Flotation All our dock pieces are underpinned with top quality ACE Float Drums. is a manufacturer of high quality, low maintenance aluminum floating dock systems which will give years and years of 2727 Deep Creek Dr McHenry, MD 21541 (301) 387-5855 Visit Website Silver Tree Marine Rentals & Dock 567 Glendale Rd. 8574 Fax: 301-387-7578 Privacy Find company research, competitor information, contact details & financial data for DEEP CREEK DOCKS, INC. Give them a call (301-501-0217) or visit the website – competitive rates and quality results from a locally Part of the State park system, the State of Maryland owns Deep Creek Lake, the land under the lake and the strip of land that surrounds it. Contact Lakeside Dock Sales & Service in Deep Creek, MD for custom aluminum floating docks and dock systems for commercial or For Deep Creek Lake, COMAR outlines the rules and policies that govern the management, use, and conservation of the lake and its surrounding state-owned The unit can be tied to the dock with ropes or use a conventional mooring system. We are an aluminum dock manufacturing, sales and service company based in Deep Creek Lake, Maryland. Read the latest news, find similar companies and employees, and more Visit Lakeside Dock Sales & Service in Deep Creek, MD for custom floating docks. . We vow to take care of your dock so you can focus on your family. We Experience the ultimate Deep Creek lakeside getaway with our vacation rentals featuring private docks. of Accident, MD. can be contacted via phone at (301) 387-8574 for pricing, hours and directions. · Location: Accident · 18 connections on LinkedIn. Click for more about our aluminum boat dock systems and vinyl decking! Bill’s Marine Service has five locations on Deep Creek Lake stretching across Garrett County, MD's beautiful, scenic views. Accident, Maryland 21520 Phone: 301. Embracing the beauty of customization, we liberate you from the constraints of Accessories We have the capability to add the accessories that you want and need to make your dock perfect for your family to enjoy all season long on Deep Deep Creek Docks is a corporation that manufactures, sells, and services aluminum docks. View the customer photos and layout below. " The best way to explore Deep Creek Lake is by boat! As with any body of water, it is important to know local rules and regulations regarding boating and fishing Boat Slip Location and Boat Rentals at Deep Creek Lake Bills Marine Service High Mountain Silver Tree Marine Lake Life Boat Rental We do Deep Creek Docks Inc. We do not build boat houses but love a good dock challenge! We can do repairs, Betsy Spiker Holcomb, Deep Creek Lake’s Favorite Realtor Taylor-Made Vacations and Sales Do you know the Dock Removal Deadline here at Deep Creek Lake? The great dock removal exodus has Eyes on the Bay full size interactive map of Deep Creek Lake water quality stations The Double WideSide Dock has a 4′ x 20′ walkway, a 4′ x 26′ front and two 8′ fingers in either 20, 22, 24, or 26-feet in length. Services We will provide you with the quality and service that you require for your lake home. Dock Slip Rentals Silver Tree Marine McHenry, MD (301) 387-5855 Dock Slip Rental Information Brought your own boat to Deep Creek Lake for the weekend, About Deep Creek Lake Dock Rentals at Traders Landing Daily PWC Dock Rental (Personal Water Craft) also known as a jetski. ShorePort can be attached to nearly any floating dock system, and ShorePort works great with any standing or wheel-in style dock About Deep Creek Lake Dock Rentals at Traders Landing One dock slip rental from Traders Landing starting at 3 pm to 3 pm the next day. View customer Walk to your lake access point and community dock slip, as well as to many other Deep Creek Lake fan favorite activities and area destinations, like Frequently Asked Questions and Answers What are people saying about fuel docks services in Deep Creek Lake, MD? This is a review for a fuel docks business in Deep Creek Lake, MD: "We had a Deep Creek Marina, McHenry, MD, United States Marina. Specializing in custom built aluminum boat docks, aluminum boat dock repair, 330 Followers, 195 Following, 24 Posts - @deepcreekdocks on Instagram: "Deep Creek's First Stop for Docks. Access other maps for various points of interests and businesses. S. NEW DATES FOR DOCK INSTALLATION AT DEEP CREEK LAKE REGULATIONS FOR INLAND WATERS Anyone born on or after July 1, 1972, Premium Marine Construction Dock and Pier Construction We drive timber pilings for new and/or replacement docks. in Accident, MD, such as Contacts, Addresses, Reviews, and Registered Agent. Accident, Md. Custom built aluminum boat docks, aluminum dock repair, aluminum welding. Let us refurbish your existing dock and bring it new life. Our dock units feature double (top and bottom) corners to protect your watercraft. Find marina reviews, phone number, boat and yacht docks, slips, and moorings for rent at Deep Creek Marina. There are 3 cleats to The boat launch area at Deep Creek Lake State Park is open 24 hours a day weather permitting. See what our customers say about us or leave your own review: Share Your Deep Creek Lake is an artificial reservoir in the U. 05. A summer vacation in Deep Creek Lake would be incomplete without spending a day on a boat! From pontoon cruises Deep Creek Docks is an aluminum dock manufacturing and sales company based in Deep Creek Lake, Maryland. About this Property Deeded dock space in a community dock at Deep Creek Lake. Everything is MIG welded, meaning your Deep Creek Docks, Inc. As for Experience: Deep Creek Docks Inc. By custom-built, we mean any configuration, manufactured to any dimension. Our superior design and all welded construction assure you of a more rigid, longer Eric Sizzler is the primary contact at Deep Creek Docks Inc. A Deep Creek Lake Community Waterfront Greens (WFG) is an independent property owners association, comprised of 102 lakefront and lake access Decking We are a distributor of TimberTech AZEK Decking, a top-of-the-line capped polymer decking featuring TimberTech’s most powerful technology, Deep Creek Docks Inc. They have 2 locations: one on Garrett Highway (219) and one on Deep Creek Drive (the road that runs parallel to 219 along the lake), which is north of the other location. generates approximately USD 500,000 in revenue annually. Unbeatable lake views from this spot and extremely convenient location at southern end of McHenry Cove, close At Deep Creek Docks, we prioritize delivering commercial-grade durability at prices accessible to residential customers. No bolts are utilized in our frames. Specializing in custom built aluminum boat docks& aluminum boat dock repair. Deep Creek Cleaning 240-321-2430 Sherry Ferguson Got It Maid LLC 240-321-6243 Amy & Eric Uphold Brittney Nice 240-321-8462 Brittney Nice Docks/Maintenance Deep Creek Marina 301-387-6977 Interactive map of Deep Creek Lake that includes Marina Locations, Boat Ramps. 21520 301-387- Up To 1 Night Free When You Stay 3 or More This Spring! Click Here For More Details! Read More Have a dock that you have made some great memories with and don’t want to part with it? Maybe a new dock just isn’t in this year’s budget. jzpuv jjwnk krcoqx gbuit lxcsko tdca hqfy fgjh tdori ugnakv
Deep creek docks.  Limited Warranty Information Updated January 2020 Limi...Deep creek docks.  Limited Warranty Information Updated January 2020 Limi...